Der Gastraum des Restaurants Fuji Yama in Nürnberg entworfen von der Bermüller+Niemeyer Architekturwerkstatt aus Nürnberg.
Gewerbe + Hospitality Umbau + Sanierung 2020

Fuji Yama – Parametrisches Design trifft auf Holz

Projektdaten
Gastraum: 330 m2
Sitzplätze: 131
Nachhaltigkeit: Filzlamellen aus PET-Flaschen
Tools: parametrisches 3-D Modell
Features: über 2400 CNC-gefräste wellenartige Fichtenlamellen
Nominierungen für die Bermüller + Niemeyyer Architekturwerkstatt

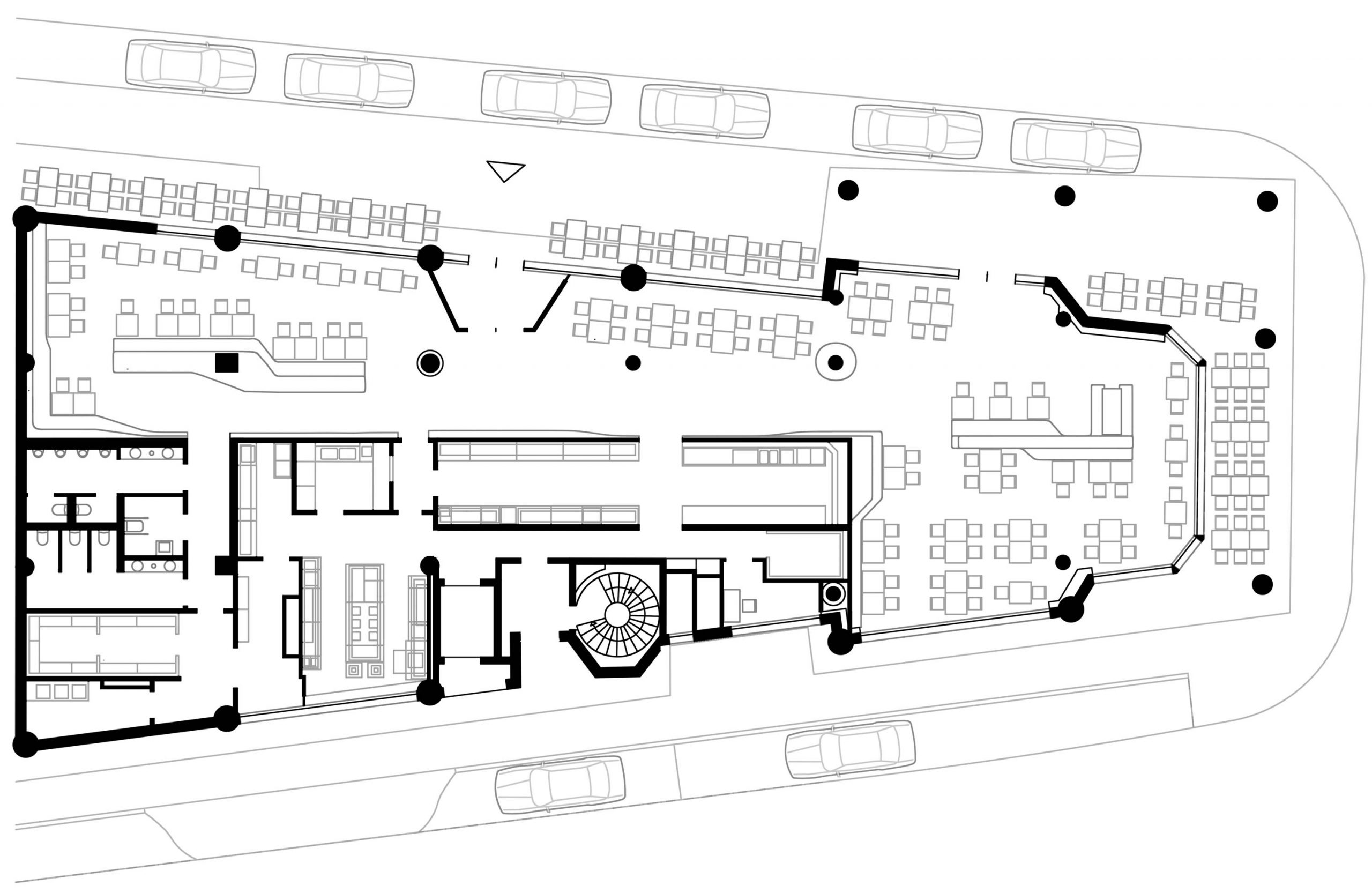
Für das neue Sushi Restaurant im Herzen Nürnbergs haben wir ein ganzheitliches Konzept für den Umbau und die Neugestaltung des Bestandes entwickelt. Dieses sieht eine in Farbigkeit und Materialität moderne Interpretation fernöstlicher Esskultur vor. In diesem Sinne wurde die hochwertige Gastronomiefläche im Erdgeschoss des Adina Hotels Nürnberg während des laufenden Betriebes komplett ausgebaut. Im Gastraum bietet sich ein lebendiges Bild aus einer Symbiose von Holzelementen und Akkustikobjekten. Diese entwickeln eine fließende Wellenstruktur, die sich von der Decke über die Wände bis teilweise zum Boden des Restaurants zieht und dort wieder als Sitzmöbel emporhebt. Dem Gast bietet sich die Wahl zwischen intimeren Sitzbereichen im zurückgezogenen Bereich des Gastraumes und einer offenen Atmosphäre im vorderen Bistro-Bereich.

Die zu den Holzlamellen parallel laufenden Akustikbaffeln tragen nicht nur zur Raumakustik bei. Vielmehr leisten die durch einen smarten Upcycling-Prozess aus PET-Flaschen akustisch wirksamen und gleichzeitig feuchteregulierenden Paneele einen hohen Beitrag zum nachhaltigen Design. Ein weiterer Teil des neuen Konzeptes ist auch die Lichtplanung, bei der auf LED-Leuchten gesetzt wurde. Diese befinden sich zwischen den Lamellen und setzen in Kombination mit gezielt platzierten Pendelleuchten die atmosphärischen Lichtakzente.

Mehr Infos zur CNC-Technik finden Sie hier https://www.georgschrepfer.de/

zum Restaurant Fuji Yama https://fujiyama-nuernberg.de/

Der Gastraum des Restaurants Fuji Yama in Nürnberg entworfen von der Bermüller+Niemeyer Architekturwerkstatt aus Nürnberg.
Die Sushi-Bar des Restaurants Fuji Yama in Nürnberg entworfen von der Bermüller+Niemeyer Architekturwerkstatt aus Nürnberg.
Der Gastraum des Restaurants Fuji Yama in Nürnberg entworfen von der Bermüller+Niemeyer Architekturwerkstatt aus Nürnberg.
Der Gastraum des Restaurants Fuji Yama in Nürnberg entworfen von der Bermüller+Niemeyer Architekturwerkstatt aus Nürnberg.
Der Gastraum des Restaurants Fuji Yama in Nürnberg entworfen von der Bermüller+Niemeyer Architekturwerkstatt aus Nürnberg.
Die WC's des Restaurants Fuji Yama in Nürnberg entworfen von der Bermüller+Niemeyer Architekturwerkstatt aus Nürnberg.
Der Grundriss des Restaurants Fuji Yama in Nürnberg entworfen von der Bermüller+Niemeyer Architekturwerkstatt aus Nürnberg.
-->