Gartenansicht vom Haus GLZ. Entworfen von der Bermüller+Niemeyer Architekturwerkstatt aus Nürnberg.
Neubau Wohnen + Quartiere 2018

Haus GLZ – Zwischen den Seen

Die Wünsche der vierköpfigen Familie sind in zwei gestapelten Kuben zusammengefasst, die sowohl private Bereiche, als auch offene Flächen bieten. Im Erdgeschoss befindet sich zum einen der barrierefreie Elternbereich mit Schlafzimmer, Ankleide und Bad en Suite. Zum anderen ein großzügiger Wohn- und Essbereich mit offenem Charakter, der mit einer durchlaufenden Glasfassade eine besondere Verbindung zwischen Innen und Außen ermöglicht. Dieser konsequente Bezug zum Außenraum, sowie die wechselseitigen Blickbeziehungen stehen hier im Vordergrund.

Projektdaten
Planungszeit: 2017
Grundstücksfläche: ca. 1500 qm
Wohnfläche: ca. 190 qm
Gartenansicht vom Haus GLZ. Entworfen von der Bermüller+Niemeyer Architekturwerkstatt aus Nürnberg.
Eingangsbereich vom Haus GLZ. Entworfen von der Bermüller+Niemeyer Architekturwerkstatt aus Nürnberg.
Der Wohnbereich im Haus GLZ. Entworfen von der Bermüller+Niemeyer Architekturwerkstatt aus Nürnberg.
Wohnbereich im Haus GLZ. Entworfen von der Bermüller+Niemeyer Architekturwerkstatt aus Nürnberg.
Badezimmer im Haus GLZ. Entworfen von der Bermüller+Niemeyer Architekturwerkstatt aus Nürnberg.
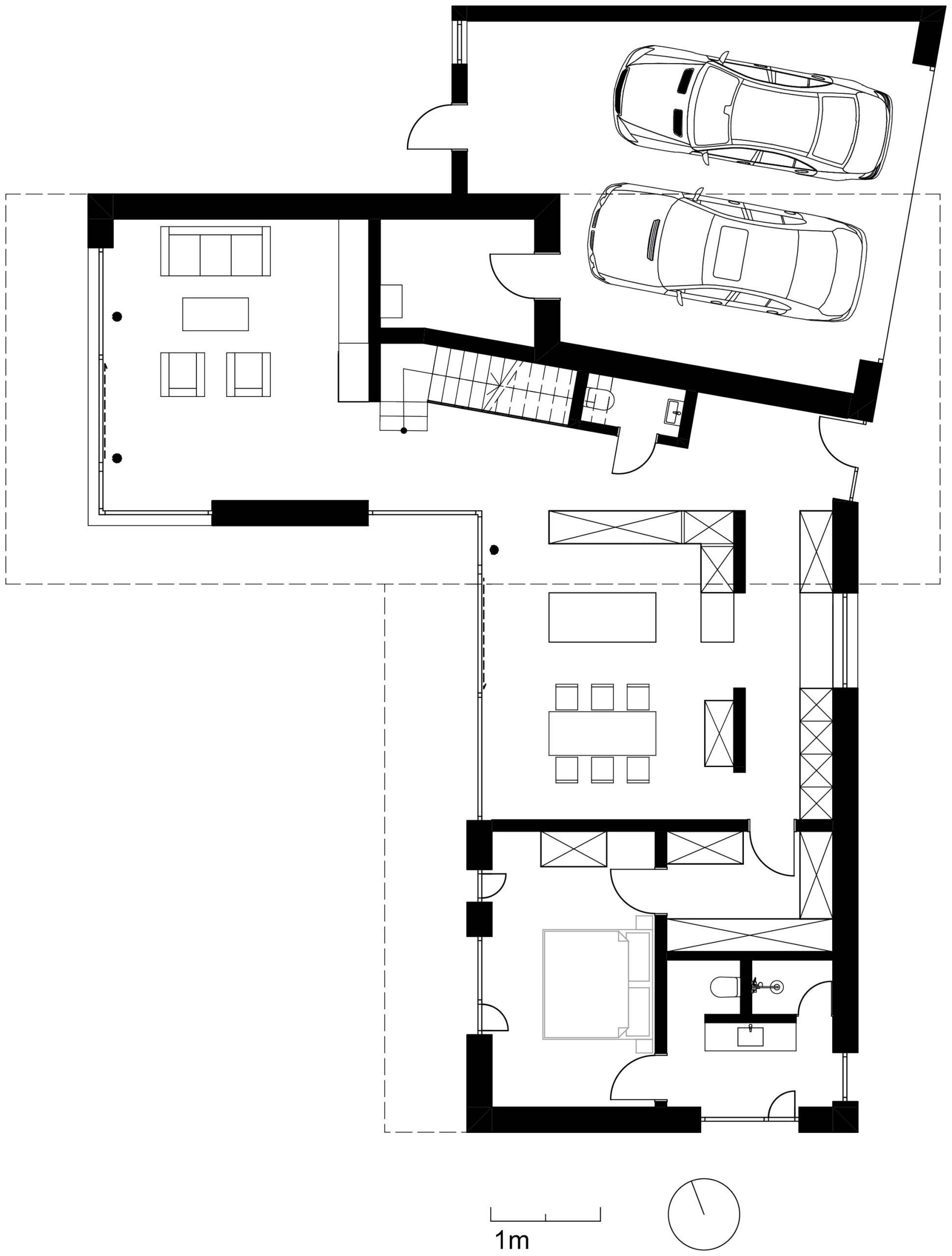
Der Grundriss des Hauses GLZ. Entworfen von der Bermüller+Niemeyer Architekturwerkstatt aus Nürnberg.
Der Grundriss des Hauses GLZ. Entworfen von der Bermüller+Niemeyer Architekturwerkstatt aus Nürnberg.
-->