Frontansicht des Einfamilienhaus
Umbau + Sanierung Wohnen + Quartiere 2012

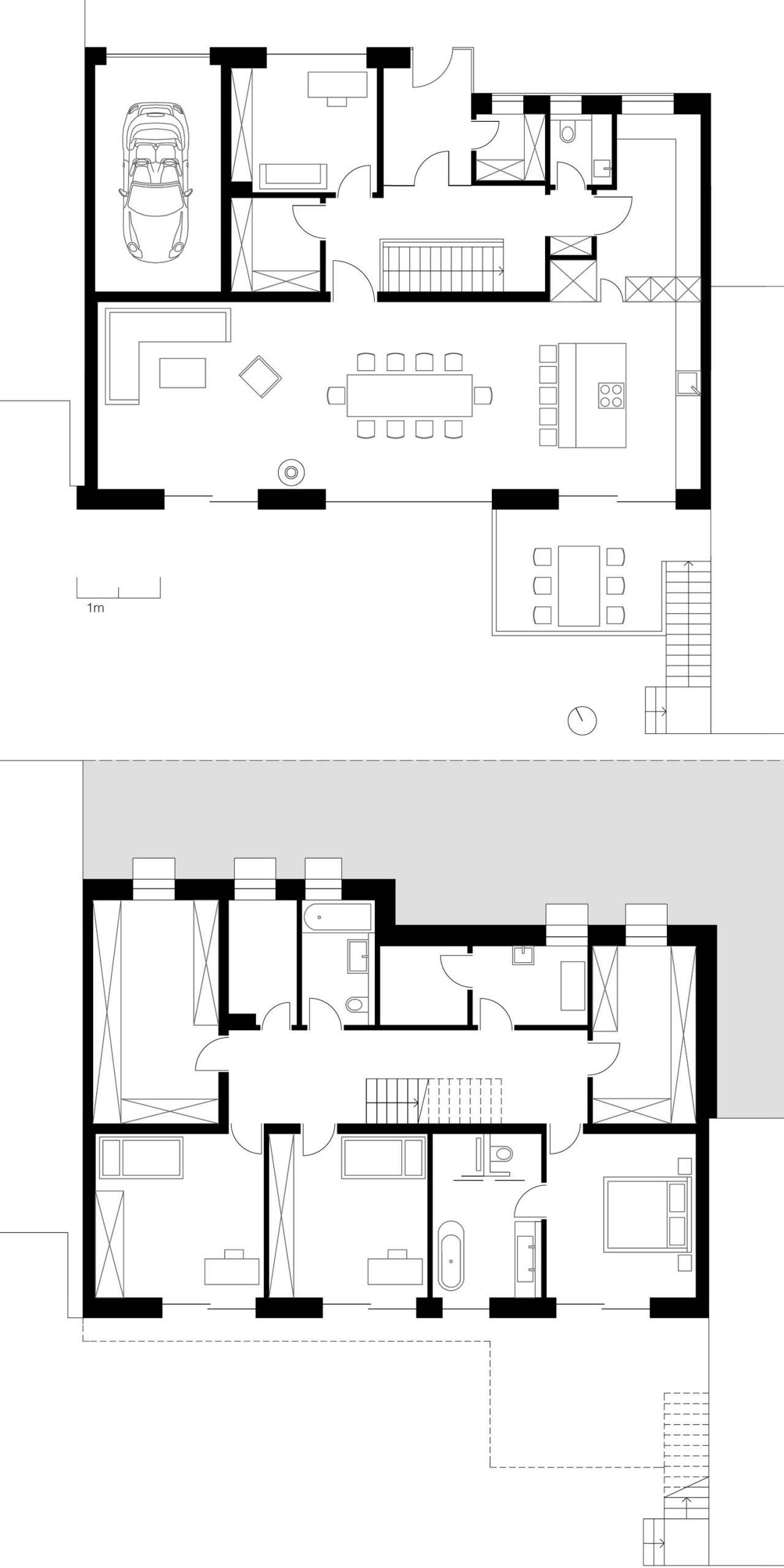
Haus KMH – Bungalow am Hang

Der Bungalow aus den 70er Jahren wurde als versetztes Reihenhaus in den Hang gebaut, von dem man über ganz Regensburg blickt. Die kleinteilige und unklare Gliederung des Hauses wurde komplett überplant und in einen offenen, großzügigen Baukörper umgewandelt. Die eingeschossige Nordfassade wird um einen Glasanbau erweitert, sodass ein großzügiges Entree entsteht. Mit großformatigen Fenstern öffnet sich die zweigeschossige Südfassade in Richtung Stadt. Schlaf- und Kinderzimmer fangen über die neuen bodentiefen Fenster die Sonne bis tief ins Innere ein und erhalten gleichzeitig einen direkten Zugang zum Garten.  Die freitragende Treppe im Inneren wird in ihrer Art erhalten jedoch komplett überarbeitet und durch Stufen aus geflammtem Stahl ersetzt.

Projektdaten
Planungszeit: 2012-2013
Bauzeit: 2013-2014
Grundstücksfläche: ca. 380 qm
Wohnfläche: ca. 200 qm
Der Blick vom Essbereich im Einfamilienhaus
Der Ess- und Kochbereich mit separater Kochinsel und in die Wand integrierten Kuechenzeilen im Einfamilienhaus
Der Eingangsbereich mit integrierter Wandablage im Einfamilienhaus
Die neue freitragende Stahltreppe mit Stufen aus geflammten Stahl und Bodenstrahlern im Einfamilienhaus
Die freistehende Badewanne im Haus KMH mit Blick auf den durch Glas-Schiebeelemente abgetrennten Duschbereich mit Duschhimmel.
Der Grundriss des Erd- und Obergeschosses des Einfamilienhauses
-->