Schnittzeichnung vom Entwurf für den Wettbewerb Kindergarten Retzbach vom Bermüller+Niemeyer Team.
Gewerbe + Hospitality Wettbewerb 2018

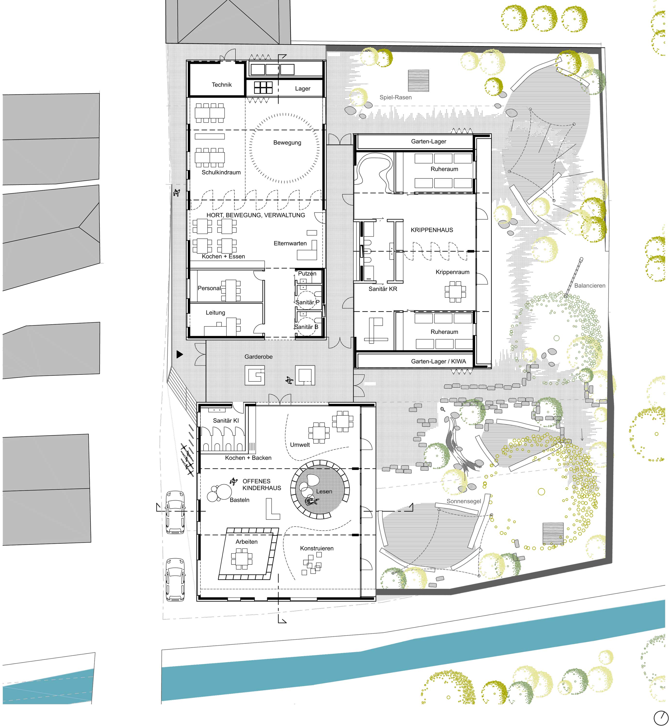
Kindergarten Retzbach – Gebaute Pädagogik

Das abfallende Grundstück inmitten der ländlich geprägten kleinteiligen Struktur grenzt direkt an den Retzbach. Entsprechend der Hauptnutzungen (Krippe, Kita, Hort) sieht der Entwurf drei separate Baukörper vor, die sich proportional in das Umfeld integrieren. Die Kindertagesstätte in Retzbach verfolgt ein offenes pädagogisches Konzept, demnach werden die Kinder in keine Gruppen unterteilt sondern in flexiblen Spiel-und Lernzonen betreut.

Die aufgefächerten Satteldächer greifen die Form und Maßstäblichkeit der angrenzenden Bebauung auf. Die Kubatur wird dementsprechend entlang der Straße platziert, wodurch der rückwärtige Grundstücksbereich eine geschützte Spielfläche aufweist. Der südliche Baukörper schiebt sich ca. 1,50 m aus dem Gelände heraus, sodass alle Gebäudeteile der barrierefreien Einrichtung über dem Hochwasserbereich liegen. Auch die Fassadengestaltung orientiert sich an seinem Umfeld. Folglich zeigt sich die Fassade straßenseitig als geschlossene Lochfassade, die durch die Materialwahl und differenzierte Lamellenabstände eine eigenständige Architektur erhält. Die Gartenseite öffnet sich nahezu komplett und greift das Thema der umgekehrten Lochfassade mit einzelnen geschlossenen Elementen auf, die als Wetterschutz dienen.

Projektdaten
Planungszeit: 2018
Grundstücksfläche: ca. 1.600 qm
Nutzfläche: ca. 800 qm
Bauherr: Marktgemeinde Zellingen
Kindergarten Retzbach Zeichnungen
Grundriss vom Entwurf für den Kindergarten Retzbach vom Bermüller+Niemeyer Team.
Schnittzeichnung vom Entwurf für den Wettbewerb Kindergarten Retzbach vom Bermüller+Niemeyer Team.
Die Piktogramme für den Wettbewerb mit den Realisierungsetappen vom Kindergarten in Retzbach.
Perspektive vom Entwurf für den Kindergarten Retzbach vom Bermüller+Niemeyer Team.
-->